智慧路灯 | 户外照明路灯 | 监控杆件 | 交通杆件定制厂家 专精特新企业 · 高新技术企业 ·智慧灯杆参编单位 天府机场、大运会成套杆件供应商

服务热线服务热线18200263117

菲尼特新闻资讯

成都市智慧多功能灯杆设计、施工重点注意事项-基础

来源: | 发布日期:2021-09-27

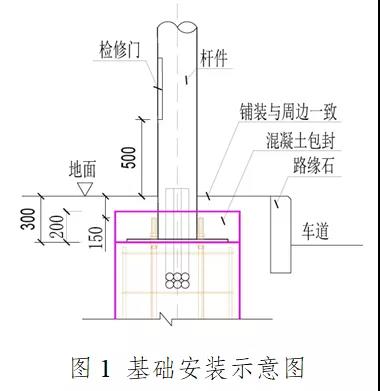
基础

(一)按设计单位平面布置图确定基础位置时,如遇障碍,可沿杆体排列轴线在左右2m内调整;在左右2m~5m内调整时,相邻左右2柱杆体间距原则上应做相应调整,使间距均匀;在左右5m~10m内调整时,相邻左右5柱杆体间距原则上应做相应调整,使间距均匀;超过10m调整应报请设计单位确认。

(二)智慧灯杆在人行道和绿化带内时宜设置在基础中心距离路缘石外沿1m的位置,杆体在分隔带内时宜位于分隔带中间。

(三)常规智慧灯杆检修门下沿距杆体法兰800mm,基础法兰距铺装后的地面下沉300mm;基础位于人行道时,地面为铺装后的人行道表面;基础位于分隔绿带时,地面为景观专业确定的土面。如图1所示。

智慧灯杆安装注意事项

(四)设置在桥梁挡墙上的智慧灯杆检修门下沿距杆体法兰300mm。

(五)基础预埋管不少于4根Φ50、2根Φ80碳素波纹管或钢丝软管,弯曲半径应满足电缆弯曲半径要求,不得出现折角现象。

(六)基础预埋管内应预留8#镀锌铁丝。

(七)基础预埋管应从基础中心穿出,并应超过基础平面30mm~50mm。

(八)直线段保护管内径不应小于电缆外径的1.5倍,有弯曲时不应小于2倍,常用电缆外径及穿管管径见表1。

智慧灯杆安装注意事项

(九)基础开挖后应夯实坑底。若位于膨胀土地区,应采取铺设土工布等措施。

(十)穿电缆之前基础预埋管两端应用胶带(封口胶)包封,避免混凝土等异物进入堵塞预埋管。

(十一)浇筑基础前,应排除坑内积水,并应保证基础坑内无碎土、石、砖及其他杂物。

(十二)基础浇筑完毕灯杆安装之前,除外露地脚螺栓及螺母使用胶布包裹外,还应采用木质框架或PVC锥形桶对外露地脚螺栓进行覆盖保护,并设置警示标志,防止绿化回填掩埋基础。

(十三)杆体紧固校正后,将接地导体与杆体法兰盘焊接或螺栓连接,如智慧灯杆安装在人行道上,须用混凝土包封法兰、螺栓,表面铺装与基础周边一致;如杆体安装在非机隔离带(主辅隔离带)上,可考虑使用混凝土或其他防锈措施包封法兰、螺栓。

【本文标签】 多杆合一 智慧灯杆 智慧路灯杆

【责任编辑】

最新资讯

四川菲尼特数字科技集团有限公司 版权所有技术支持:牛商股份(股票代码:830770)百度统计网站地图